For Sale - Dudokstraat 216
Hoofddorp Available - For Sale
A Brilliant Penthouse with terrace close to Amsterdam!
Price: 659.000,- k.k. + PP
Surface: 80 m2 (+14 Outside)
Rooms: 4 (3 bedrooms)
Location: Hoofddorp
Specifics
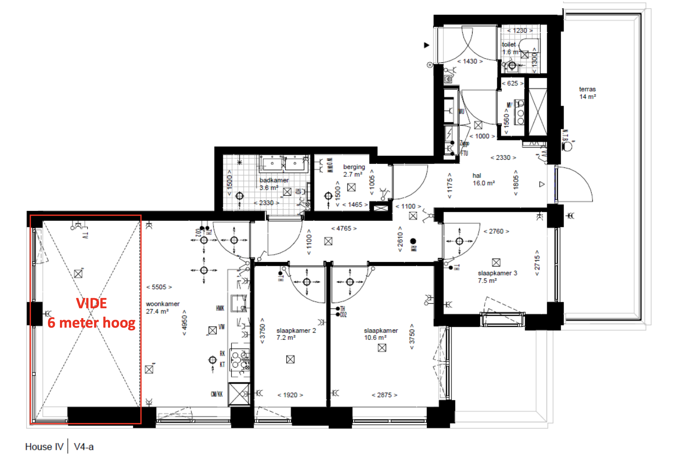
Have you always dreamed of living in a penthouse with a spectacular rooftop terrace? And not only that, but with six-meter-high voids, gas-free living, and being the first resident? This is your chance!
Delivery date in about one year
80 m² living area
One private parking space under the block
14 m² outdoor space
The price includes fully equipped kitchen, bathroom, and toilet
Energy label: A+++ (no gas!)
Underfloor heating and cooling
Shared inner garden
Bicycle shed
Indication service costs € 169,-
Butler service and in-house concierge during office hours
Own ground, no leasehold.
HYDE PARK
HYDE PARK
Hyde Park is an ultra-modern urban area on the outskirts of Amsterdam. This architectural, sustainable, and car-free city district in Hoofddorp will house more than 3,800 luxury apartments and studios.
Hyde Park is all about international architecture. Architect Winy Maas from the renowned architectural firm MVRDV created the brilliant master plan for Hyde Park. The "Notting Hill" apartment block was designed by the MVSA architectural firm.
Hyde Park is an entirely new concept, where young and old, singles, couples, and families all feel at home. The wide boulevards with restaurants, spacious courtyards, and sun-drenched rooftop terraces offer plenty of opportunities to relax and enjoy.
Layout
This beautiful penthouse with a spectacular 14 m2 rooftop terrace and six-meter-high voids is a brand new, gas-free residence of 80 m2 that offers the ultimate luxury and comfort for modern living. With a unique layout, this penthouse is a true eye-catcher and provides an enormous amount of natural light.
The apartment comes with a luxurious kitchen, bathroom, and toilet. The flooring and wall finishing can be decorated according to your own taste.
The luxury apartment block "Notting Hill" also offers a butler service; accepting your packages when you're not home, ordering a bouquet of flowers, or taking your clothes to the dry cleaner. The butler service takes care of it all!
Residents also have access to the stunning courtyard designed by landscape architect Wim Voogt from OKRA.
Location
Hyde Park is the center of the Randstad, due to its proximity to the NS train station. It is only 4 minutes away from Schiphol, 12 minutes from the business center of Zuidas, and approximately 30 minutes from Utrecht, The Hague, Rotterdam, and Leiden. Surroundings: Within walking distance of Hyde Park is a large shopping center with various restaurants and a cinema. There are many sports facilities in the immediate vicinity, and the Haarlemmermeerse Bos is a lovely place to spend a beautiful summer day.
Gallery



